白岡市西2丁目 中古戸建
白岡市西2丁目 中古戸建:東北本線白岡駅にも近くて便利。薬や日用品を買うのに便利な薬マツモトキヨシ petit madoca 白岡店まで、421mです。クローゼットが3ヶ所あります。一戸建ての情報はもちろん、地域環境も併せてご紹介いたします。東北本線白岡付近の事なら当社にお任せ下さい。
-
ローンシミュレーションこの物件を購入した場合の、月々の支払い価格の一例です。借り入れを保証するものではございません。
- 返済期間
-
- 金利
-
- ボーナス時の増額(1回分)
-
- 借入金額:
-
- 頭金:
-

- 毎月の返済額:
(※元利均等方式 金利5.00%まで ※返済年数5~50年まで入力できます)
(※ボーナスは年2回で計算しています。1000万円まで入力できます)
(※物件購入時、その他諸費用が発生する場合がございます)
情報の見方担当者のコメント ジャパナビお客様応援隊 ヴィヴィ隊長

- 新着情報:白岡市西2丁目 中古戸建の空室情報ならコチラ。白岡市立西小学校まで徒歩15分。子どもを安心して学校に通わせたいファミリーにおすすめです。建物面積90.25㎡でご家族と過ごすのにも問題のない広さです。こちらの物件はいかがでしょうか。価格は2,080万円です。ご希望に沿った一戸建てをご紹介致します。白岡市の東北本線白岡付近でマイホームの購入をお考えなら、お気軽にお問い合わせください。
ポイント・特徴
物件概要
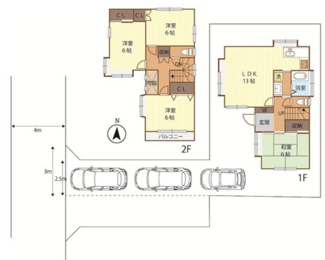
【中古一戸建】 物件番号:96144858 情報更新日:2025年11月10日 次回更新予定日:2025年11月24日所在地 埼玉県白岡市西2丁目 交通 間取り/詳細 4LDK/
LDK 13.0帖 1室/和室 6.0帖 1室/洋室 6.0帖 3室建物面積(坪数) 90.25㎡(27.3坪) 価格 2,080万円 駐車場/月額料金 有/- 土地の敷金/保証金 -/- 借地料/借地期間 -/- 土地権利 所有権 土地面積(坪数) 127.25㎡(38.49坪) 傾斜地部分面積 - 路地状敷地 - 私道負担面積/セットバック -/無 高圧線下面積 - 地目/地勢 宅地/- 接道状況 一方(西 公道 4.0m)(西 公道 4.0m 間口 3.0m) 建ぺい率/容積率 60%/200% 用途地域 第一種中高層住居専用 都市計画 市街化区域 種別/構造 中古一戸建/木造 階建 2階建 築年月(築年数) 1993年 9月 (築32年) 総区画数/販売区画数 1区画/1区画 向き - 現況 空家 その他の法令上の制限 景観法 取引態様/引渡時期 一般媒介/即時 建築確認番号 - 物件番号 96144858 取引条件の有効期限 2025年11月24日 リフォーム 2025年7月
キッチン 浴室 トイレ 壁 床 全室 洗面化粧台交換、畳張替え、障子張替え、玄関収納新設、ハウスクリーニング
2025年7月
外壁 屋根 外構工事
設備条件 - 陽当り良好
- 閑静な住宅地
- リフォーム済
- リノベーション済
- ファミリー向け
- 室内洗濯機置場
- バルコニー
- 出窓
- プロパンガス
- 公営水道
- 公共下水
- 24時間換気システム
- 電気有
- 照明器具付き
- 駐車3台可
- ガスコンロ
- コンロ2口以上
- コンロ3口
- 追焚機能浴室
- 温水洗浄便座
- トイレ2ヶ所
- 浴室1坪以上
- 床下収納
- TVモニタ付インターホン
- ディンプルキー
- 住戸内覧可能
備考 薬や日用品を買うのに便利な薬マツモトキヨシ petit madoca 白岡店まで421mです。追い焚き機能付きで水道代の節約につながります。出窓スペースを有効に使ってインテリアなどを飾りましょう。白岡市より一戸建てをお探しなら、東北本線白岡近辺がお勧めです。交通の利便性の高い暮らしを送りましょう。 取扱会社 - ジャパナビ不動産ショップ 株式会社ジャパナビハウス
- 埼玉県蓮田市東4丁目5-13 MEGAドン・キホーテ蓮田店 2階
- TEL:048-748-5101
- 埼玉県知事 (3) 第22275号
- (公社)全国宅地建物取引業協会連合会
(公社)埼玉県宅地建物取引業協会
(公社)埼玉県宅地建物取引業保証協会
弁護士法人グリーンリーフ法律事務所
※地図上に表示される物件の位置は付近住所に所在することを表すものであり、実際の物件所在地とは異なる場合がございます。
物件お問い合わせ
- 掲載物件数
-
件
- 公開物件数
-
件
- 本日の更新件数
-
件
- 会員物件数
-
件
価格と住所の近い物件
- 白岡市彦兵衛 中古戸建
- 1,799万円 4LDK/109.82㎡
- 埼玉県白岡市彦兵衛
- 東北本線「白岡」駅
- 白岡市太田新井 中古住宅(旧積水ハウス施工注文住宅)
- 1,399万円 3LDK/112.80㎡
- 埼玉県白岡市太田新井
- 東武伊勢崎線「東武動物公園」駅 徒歩56分
- 白岡市小久喜 新築分譲住宅
- 2,980万円 4LDK/102.05㎡
- 埼玉県白岡市小久喜
- 東北本線「白岡」駅 徒歩19分
- 白岡市白岡 新築分譲住宅
- 3,349万円 4LDK/92.80㎡
- 埼玉県白岡市白岡
- 東北本線「白岡」駅 徒歩5分
- 白岡市小久喜 中古戸建
- 4,780万円 4LDK/161.17㎡
- 埼玉県白岡市小久喜
- 東北本線「白岡」駅 徒歩20分





















