サンライズ伊奈 7階
北足立郡伊奈町エリアでの住まいなら、住み心地も快適な「サンライズ伊奈」はいかがでしょうか。素敵な2LDKをお探しの方は当社まで。きれいで便利な中古マンションで優雅な生活をおくりましょう。毎日の生活をより良いものにする省エネ給湯機付。
ローンシミュレーションこの物件を購入した場合の、月々の支払い価格の一例です。借り入れを保証するものではございません。
- 返済期間
-
- 金利
-
- ボーナス時の増額(1回分)
-
- 借入金額:
-
- 頭金:
-

- 毎月の返済額:
(※元利均等方式 金利5.00%まで ※返済年数5~50年まで入力できます)
(※ボーナスは年2回で計算しています。1000万円まで入力できます)
(※物件購入時、その他諸費用が発生する場合がございます)
担当者のコメント ジャパナビお客様応援隊 ヴィヴィ隊長

- ぜひ一度見ていただきたい、「サンライズ伊奈」です。通学区域の小学校は伊奈町立 南小学校徒歩10分。エコな追焚機能付き浴室がある物件はいかがでしょうか。通勤でバイクを利用している方にも嬉しいバイク置き場付きです。
ポイント・特徴
物件概要
【中古マンション】 物件番号:96661769 情報更新日:2025年11月12日 次回更新予定日:2025年11月26日| 所在地 | 埼玉県北足立郡伊奈町大字小室 | ||
|---|---|---|---|
| 交通 | |||
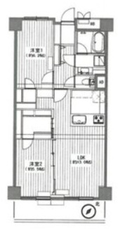
| 間取り/詳細 |
2LDK LDK 13.0帖 1室/洋室 6.2帖 1室/洋室 5.5帖 1室 |
||
| 専有面積/バルコニー面積 | 61.20㎡/7.74㎡ | ルーフバルコニー面積/テラス面積/専用庭面積 | -/-/- |
| 価格 | 1,280万円 | ||
| 管理費 | 6,300円 | ||
| 修繕積立金 | 18,700円 | 修繕積立基金 | - |
| 権利金 | - | 駐車場/月額料金 | 空無/- |
| 土地の敷金/保証金 | -/- | 借地料/借地期間 | -/- |
| 土地権利 | 所有権 | 国土法届出要否 | 不要 |
| 用途地域 | - | 地勢 | - |
| 種別/構造 | 中古マンション/鉄骨鉄筋コンクリート | 向き | 南東 |
| 築年月(築年数) | 1978年 11月 (築47年) | ||
| 所在階/階建 | 7階/8階建 | 棟総戸数/販売戸数 | 200戸/1戸 |
| 管理組合有無 | 有 | 管理形態 | 管理会社に全部委託 |
| 管理員の勤務形態 | 日勤 | 管理会社 | 戸田ビルパートナーズ(株) |
| 取引態様 | 一般媒介 | 現況 | 空家 |
| 引渡し | 即時 | 建築確認番号 | - |
| 物件番号 | 96661769 | 取引条件の有効期限 | 2025年11月26日 |
| リフォーム |
2025年7月 キッチン 浴室 トイレ 壁 床 全室 洗面化粧台交換、建具、下駄箱交換、洗濯防水パン、水栓新設、給湯器交換、LED照明増設、給排水管交換、エアコン2台設置、ハウスクリーニング |
||
| 設備条件 |
|
||
| 備考 | 来訪者を確認できる、TVインターホン付きです。専有面積は61.2平米となっており広さも十分ではないでしょうか。浄水器があれば安全な水を毎日使用することができます。快適な生活のために設計された中古マンションです。不動産のことで悩みがあるなら、ジャパナビ不動産ショップジャパナビハウスにご連絡下さい。お客様のお悩みを解決できるよう、当社スタッフがしっかりとサポート致します。 | ||
| 取扱会社 |
|
||
※地図上に表示される物件の位置は付近住所に所在することを表すものであり、実際の物件所在地とは異なる場合がございます。
























